0

NKP

0

vrt i otvorena terasa

0

spavaće sobe

Uživajte u udobnosti i eleganciji koja se prostire na ukupnoj podnoj površini od 157,92 m² (NKP 100,18 m²).

Dodatnu vrijednost pruža prostrani vrt i otvorena terasa od 73,90 m², idealni za opuštanje i druženje na otvorenom. Uz stan, na raspolaganju su za kupnju parkirno mjesto i garažno parkirno mjesto.

prostorni raspored

Stan D1 je funkcionalno raspoređen s prostranim i svijetlim prostorima, prilagođen udobnom i praktičnom životu.

0

NKP

0

vrt

0

spavaće sobe

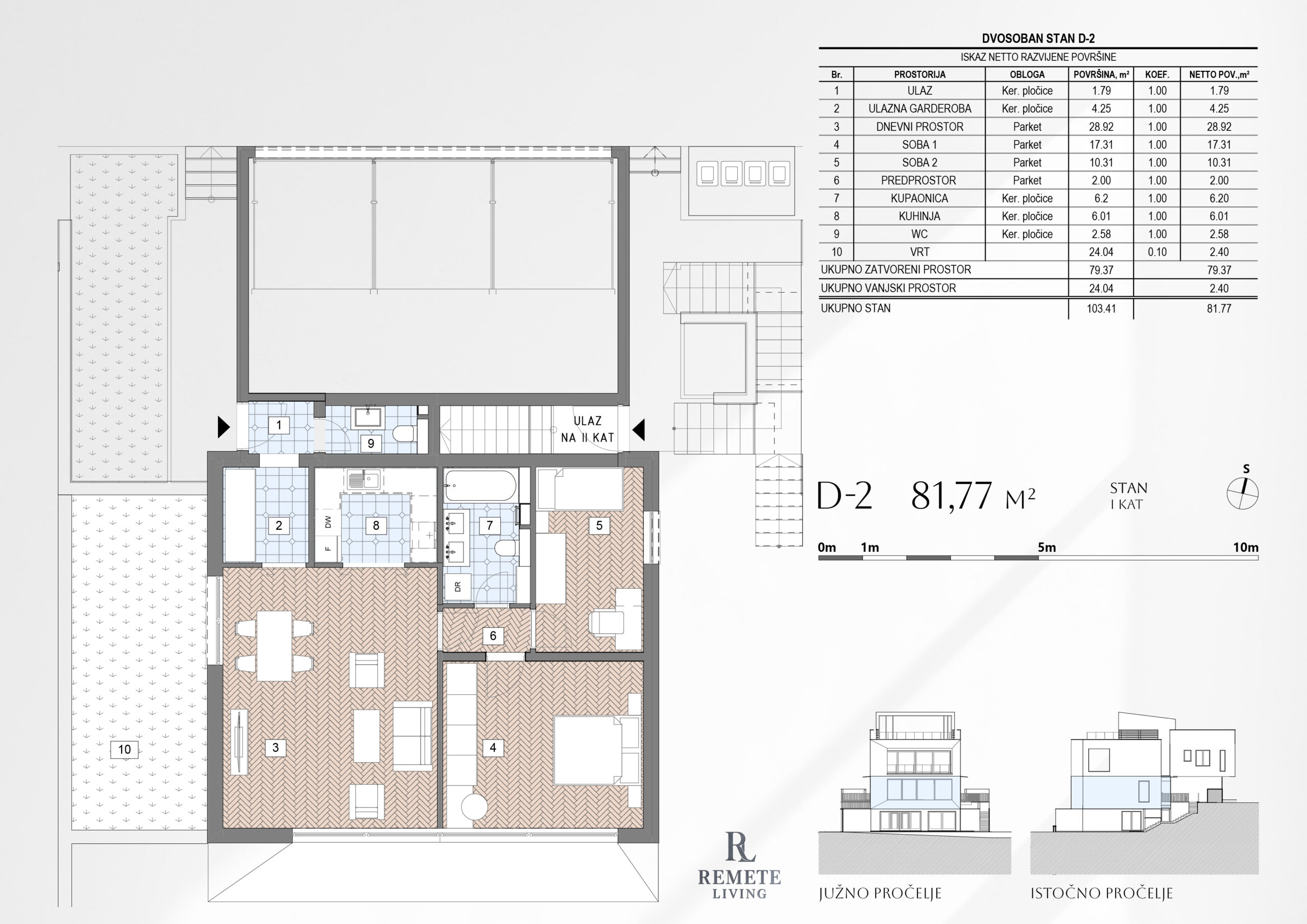
Stan D-2 oduševljava svojom ukupnom podnom površinom od 103,41 m² (NKP 81,77 m²) skladno povezujući elegantan interijer i zeleni eksterijer.

Unutarnji moderno oblikovani životni prostor pruža savršenu ravnotežu između funkcionalnosti i estetike, dok privatni vrt od 24,04 m² stvara intimno okruženje za opuštanje i boravak na otvorenom.
Stan nudi mogućnost kupovine parkirnog mjesta i garažnog parkirnog mjesta, čime svakodnevni život postaje jednostavniji i ugodniji.

prostorni raspored

Stan D2 odlikuje se modernim rasporedom i privatnim vrtom koji pruža dodatni osjećaj prostora i povezanosti s prirodom.

0

NKP

0

terasa i ljetna kuhinja na krovu

0

spavaće sobe

0

kupaonice

Stan D3 prostire se na  306,53 m² (NKP 185,93 m²) stambene površine i nudi izniman komfor. Poseban adut ovog stana je krovna terasa s ljetnom kuhinjom od 149,49 m², koja pruža jedinstven prostor za odmor i druženje na otvorenom.

Uz suvremeni raspored i visoku razinu kvalitete gradnje, Stan D3 predstavlja idealan spoj luksuza i funkcionalnosti.

prostorni raspored

Stan D3 pruža prostran i suvremen raspored s ekskluzivnim krovnim prostorom koji uključuje terasu i ljetnu kuhinju. Idealan je za one koji žele spoj luksuza, udobnosti i privatnog prostora za uživanje na otvorenom.

© All Copyright 2025 by Remete Living